- Woonoppervlakte
- Circa 138 m²
- Perceeloppervlakte
- Circa 860 m²
- Bouwjaar
- Gebouwd in 1950
- Aantal kamers
- 4 kamers (3 slaapkamers)
**Vrijstaand wonen in het groen – Haspelstraat 26, Hoeven**
Heb je altijd al gedroomd van een vrijstaande woning waar je elke dag het vakantiegevoel beleeft? Neem dan absoluut eens een kijkje op de Haspelstraat 26 in Hoeven. Hier krijg je rust, ruimte en een heerlijke bosrijke omgeving cadeau. Alles klopt; of je nu wilt genieten van de enorme tuin, wilt thuiskomen in een gemoderniseerd, comfortabel huis óf graag thuiswerkt, dit huis heeft het allemaal. De woning heeft dankzij de kunststof kozijnen en de nieuw geplaatste rolluiken (elektrisch bediend) een stijlvolle uitstraling en biedt tegelijkertijd veel privacy. Perceel van 860m2 en tuin van ca.720m2 rondom, dus altijd een plekje in de zon te vinden!
**Indeling**
Kom binnen via de voordeur in de hal met hier de trap en de meterkast. Loop door naar de riante woonkamer: een fijne open plek met grote ramen, rolluiken én natuurlijk die gezellige houtkachel voor knusse avonden. Tegelijkertijd kun je hier ook verkoeling zoeken want hier is ook airconditioning geplaatst. Via de woonkamer bereik je het kantoor — ideaal voor wie veel thuis werkt of een rustige plek nodig heeft voor studerende kinderen.
Aan de andere zijde van de woonkamer grenst de nieuwe keuken met groot werkblad (2025). In de keuken tref je onder andere een luxe 4-in-1 Quooker Cube, een groot fornuis met twee ovens en overige inbouwapparatuur. De tegelvloer op de benedenverdieping is eveneens recent vernieuwd en voorzien van vloerverwarming.
Via de keuken kom je in de hal met hier de toegang tot de toiletruimte, de badkamer, inpandige garage en de bijkeuken/wasruimte. De badkamer is van 2018 en heeft een ligbad (bubbelbad), dubbele wastafel, en de douchecabine is in 2024 vernieuwd. De praktische bijkeuken is van alle benodigde aansluitingen voorzien, namelijk twee wasmachine aansluitingen, plek voor een wasdroger, een wasbak, de verdeler van de vloerverwarming met daarbij ook de CV-ketel (Remeha Calenta 2015 - volle eigendom). Tevens vind u hier de grondwaterpomp, perfect voor het besproeien van de tuin. Alle techniek in een aparte ruimte, handig!
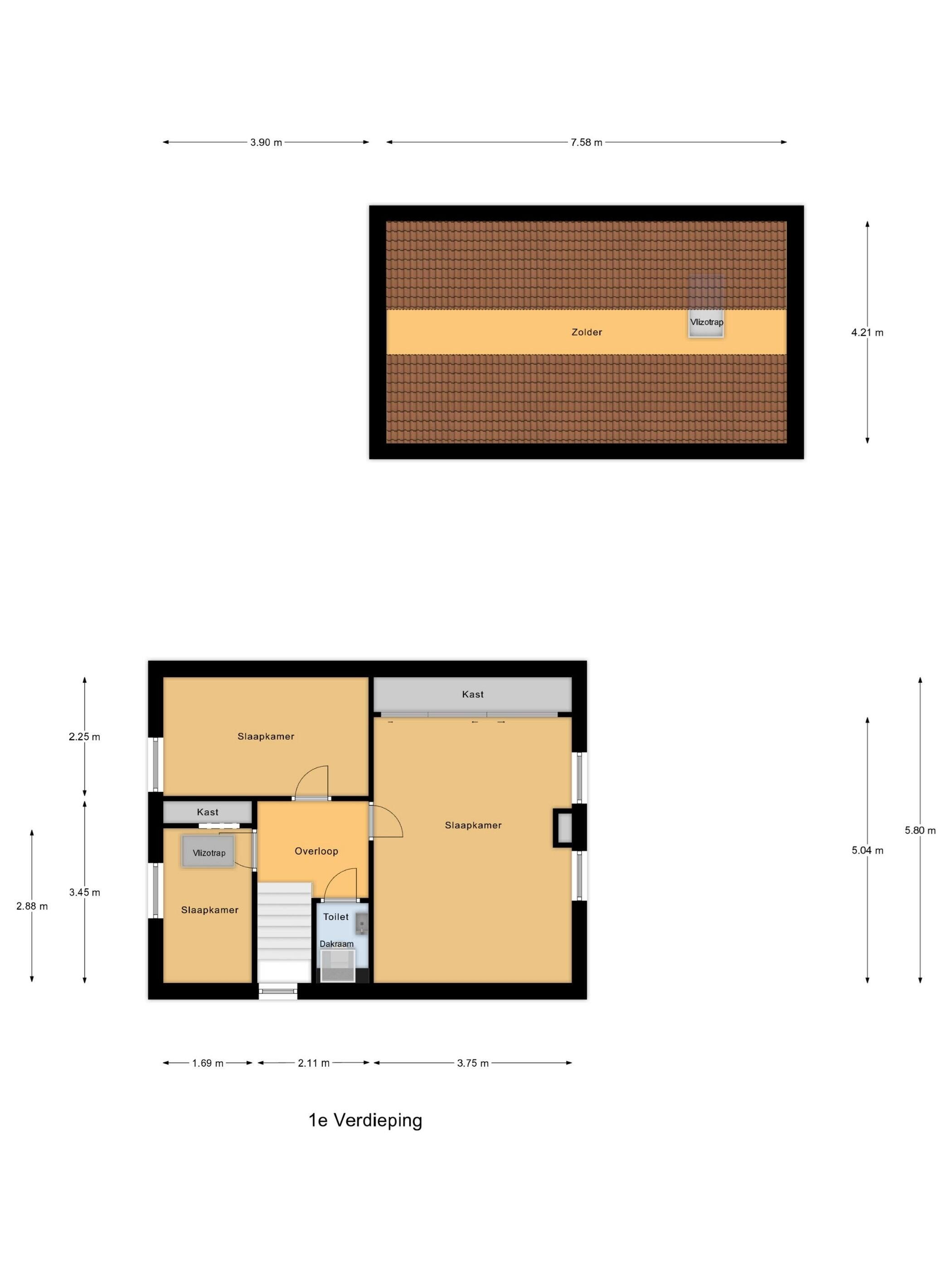
**Eerste verdieping**
De bovenverdieping is bekleed met laminaat, de grote slaapkamer met tapijt, het toilet is geheel gemoderniseerd. Er zijn in totaal 3 slaapkamers en de grote slaapkamer is voorzien van airconditioning.
**Zolders**
Via een vlizotrap komt u op de bergzolder van de woning. Ook is er bergzolder boven de bijkeuken, ideaal als opslagruimtes!
**Garage**
De grote inpandige garage (ca. 31m2) is voorzien van elektrische garagedeur, stroomvoorziening, verwarming en biedt genoeg ruimte voor onder andere een auto, fietsen of kan dienen als hobbyruimte om wat te klussen! Het plat dak van de garage is in 2024 geheel vernieuwd.
**Rust en ruimte**
Het perceel van 860m2 is groot en heeft veel te bieden. De tuin, rondom het huis, beslaat ca. 720 m² en is een plek waar je zomer én winter helemaal op kunt gaan in het buitenleven. Ook hier is een bubbelbad aanwezig! Het gras is onlangs fraai aangelegd en dankzij de grondwaterpomp inclusief sproei-installatie houd je het gazon mooi groen. Tevens is er genoeg plek om te parkeren op eigen terrein aan de voorzijde van de woning.
Kortom: Haspelstraat 26 in Hoeven is geen standaard vrijstaande woning, maar een thuis waar aan alles gedacht is. De natuur aan je voeten, comfort, ruimte, luxe en volop mogelijkheden voor thuiswerken en gezinnen. Maak snel een afspraak voor een bezichtiging en laat je verrassen! Lees de volledige omschrijving
Overdracht
- Vraagprijs
- € 695.000 k.k.
- Status
- Verkocht
Bouw
- Object type
- Eengezinswoning, vrijstaande woning
- Soort bouw
- Bestaande bouw
- Bouwjaar
- 1950
- Soort dak
- Zadeldak bedekt met pannen
Oppervlakte en inhoud
- Woonoppervlakte
- 138 m²
- Perceeloppervlakte
- 860 m²
- Inhoud
- 667 m³
Indeling
- Aantal kamers
- 4 kamers (3 slaapkamers)
- Aantal badkamers
- 1 badkamer en 2 aparte toiletten
- Badkamervoorzieningen
- Douche, dubbele wastafel, en ligbad
- Aantal woonlagen
- 2 woonlagen en een zolder
- Voorzieningen
- Airconditioning, glasvezelkabel, natuurlijke ventilatie, rolluiken, rookkanaal, en zonnepanelen
Energie
- Energielabel
- C
- Energielabel registratie
- 13-12-2020
- Isolatie
- Dakisolatie, hr-glas en muurisolatie
- Verwarming
- Cv-ketel, houtkachel en gedeeltelijke vloerverwarming
- Warm water
- Cv-ketel
- Cv ketel
- Remeha calenta (gas gestookt combiketel uit 2015, eigendom)
Buitenruimte
- Tuin
- Tuin rondom
Garage
- Soort garage
- Inpandig
- Capaciteit
- 1 auto
- Voorzieningen
- Elektrische deur, elektra en verwarming
Parkeergelegenheid
- Soort parkeergelegenheid
- Op eigen terrein
Energieverbruik in Hoeven
Energielabel deze woning
Energielabel C
Publicatie energielabel: 13-12-2020
Stroomverbruik per jaar
(Gemiddelde vrijstaande woning in Hoeven)
Gasverbruik per jaar
(Gemiddelde vrijstaande woning in Hoeven)
* Cijfers zijn afkomstig van het CBS en bedoeld als indicatie en kunnen verschillen voor deze woning
Indicatie hypotheeklasten
Eigen inleg:
Spaargeld / overwaarde
Rente:
Laagste 10-jaars rente
Laagste 10-jaars rente
2,75% - Centraal Beheer Groen... - NHG
3,05% - Centraal Beheer Groen... - 80%
Laagste 20-jaars rente
3,23% - Argenta Groen Hypothee... - NHG
3,44% - Argenta Groen Hypothee... - 80%
Laagste 30-jaars rente
3,4% - Argenta Groen Hypotheek... - NHG
3,61% - Argenta Groen Hypothee... - 80%
Hypotheek:
Bruto maandlasten: € 0 p/m
Netto maandlasten: € 0 p/m
Hoe berekenen we dit?
Het rentepercentage is gebaseerd op de laagste 10-jaars vaste rente voor één hypotheekdeel. De vermelde rente (3.05% zonder NHG) is gecontroleerd op 18-10-2025. Deze berekening is gebaseerd op een annuïteitenhypotheek die volledig wordt afgelost, waarbij de maandlasten gedurende de gehele looptijd gelijk blijven. De werkelijke rente en netto maandlasten kunnen variëren, afhankelijk van uw persoonlijke situatie en de hypotheekverstrekker. Raadpleeg een financieel adviseur voor een nauwkeurige berekening en advies. Aan deze berekening kunnen geen rechten worden ontleend; het dient enkel als indicatie.
Documentatie
Kadastrale kaart
Leefomgeving
Plattegronden PDF
BAG uittreksel
Energielabel
Vragenlijst
Lijst van zaken
WOZ waarderapport
Brochure
Bekijk onze website
Bezichtiging
Bod uitbrengen
Waardebepaling
Zoekopdracht
Alles downloaden
Zonnegrenzen bekijken
Op de kaart
Inwoners in Hoeven
Cijfers voor postcodegebied 4741
- Totaal aantal inwoners
- 6765 inwoners
- Mannen
- 50%
- Vrouwen
- 50%
Inwoners in Hoeven
Cijfers voor postcodegebied 4741
- tot 15 jaar
- 14%
- 15 tot 25 jaar
- 10%
- 25 tot 35 jaar
- 19%
- 45 tot 65 jaar
- 31%
- 65 en ouder
- 25%
Huishoudens in Hoeven
Cijfers voor postcodegebied 4741
- Eenpersoons zonder kinderen
- 27%
- Meerpersoons zonder kinderen
- 37%
- Huishoudens zonder kinderen
- 64%
Huishoudens in Hoeven
Cijfers voor postcodegebied 4741
- Huishoudens met één kind
- 6%
- Huishoudens met meerdere kinderen
- 30%
- Huishoudens met kinderen
- 36%
Woningen in Hoeven
Cijfers voor postcodegebied 4741
- Woningen voor 1945
- 7%
- Woningen tussen 1945 en 1965
- 14%
- Woningen tussen 1965 en 1975
- 21%
- Woningen tussen 1975 en 1985
- 17%
- Woningen tussen 1985 en 1995
- 17%
Woningen in Hoeven
Cijfers voor postcodegebied 4741
- Woningen tussen 1995 en 2005
- 9%
- Woningen tussen 2005 en 2015
- 11%
- Woningen na 2015
- 3%
- Huurwoningen
- 30%
- Koopwoningen
- 70%
Overige in Hoeven
Cijfers voor postcodegebied 4741
- Gemiddelde WOZ waarde
- € 307.000,-
- Personen onder de 65 met uitkering
- 5%
Overige in Hoeven
Cijfers voor postcodegebied 4741
- Adressen per km²
- 577
- Stedelijkheid (schaal 1 op 5)
- 40%
De Huizenpraktijk
Indien u vragen heeft of u wilt een bezichtiging inplannen, dan kunt u gebruik maken van het formulier hiernaast. Er zal daarna op korte termijn contact met u worden opgenomen.
Contact opnemen
Het voordelige makelaarskantoor
Verkoop, aankoop en waardebepaling bij De Huizenpraktijk
De Huizenpraktijk in Zundert is dé makelaar met een unieke aanpak! Wij hanteren een vast, laag bedrag voor de verkoop of aankoop van je woning, dat eerlijk en realistisch is. Als onderdeel van Backx Assurantiën kunnen we je bovendien adviseren over je nieuwe hypotheek of verzekering.
Wij geloven in een open en eerlijke woningverkoop. Daarom rekenen we een eerlijk en realistisch bedrag dat je zelf mag bepalen na een succesvolle verkoop. Zo houd je geld over om je nieuwe huis in te richten, en zijn wij blij dat we je hebben kunnen helpen.
Wat de reden ook is om je huis te verkopen, je wilt zo snel mogelijk weten waar je aan toe bent. Daarom nemen wij je die zorgen uit handen tegen een laag tarief. Bij ons bepaal je de courtage zelf!
Is jouw huis verkocht dan bepaal jij op dat moment welk percentage je de makelaar gunt. Dit ligt tussen de 0,9% en de 1,6%*
Wat doen wij voor u?
- Woningopname met prijsbepaling in samenspraak;
- Opvragen kadastrale gegevens;
- Professionele foto’s, video, 360 graden foto's;
- Omschrijving maken;
- Inmeten volgens NEN 2580 en plattegronden maken;
- Woning op Funda, Jaap, Huislijn en Pararius;
- Fysieke glossy brochures voor iedere kijker;
- Eigen woningwebsite;
- Promotie via sociale media;
- Tuinbord plaatsen;
- Bezichtigingen coördineren en verzorgen;
- Prijsonderhandelingen met potentiële koper(s);
- Opstellen koopovereenkomst;
- Eindinspectie bij overdracht (meterstanden);
- Coördinatie overdracht notaris.
Nieuwste reviews
-
Berkenlaan 20
Wij zijn ontzettend goed geholpen door de medewerkers van De Huizenpraktijk. We zijn zeer professioneel en vriendelijk geholpen. Zeker een a...
-
de Krijntjes 35
Prijs van de makelaar mocht je zelf bepalen met een variabel courtage tussen de 0.8 en 1.6%. Goede werkwijze en fijne contactmomenten. Ontzo...
-
Paulus Potterstraat 3
Een prima contact met de makelaar ,hadden reeds ervaring met deze makelaar bij aankoop van onze woning 6 jaar geleden en dit was ons zo goed...